Trilocale in vendita

Terrasini, Contrada Agli Androni - Agliandroni
€ 225.000
3 locali 3 locali
85 Mq 85 Mq
2 bagni 2 bagni

Trilocale in vendita

Terrasini, Contrada Agli Androni - Agliandroni

Descrizione annuncio

In zona residenziale 'AGLI ANDRONI', proponiamo in vendita APPARTAMENTI DI NUOVA COSTRUZIONE di 85 metri quadrati con ingresso indipendente su giardino dotato di predisposizione per piscina.

Gli appartamenti risultano totalmente indipendenti grazie alle recinzioni che delimitano i lotti. Inoltre, ogni appartamento gode di quadrupla esposizione, garantendo luminosità e vista sul giardino.

Gli immobili verranno consegnati al cliente con la formula 'chiavi in mano' e si trovano attualmente in stato di costruzione. Per questo motivo, oggi vi è la possibilità di apportare alcune modifiche a proprio gusto.

All'interno dello stabile sono presenti soli due appartamenti ed ognuno è così composto:

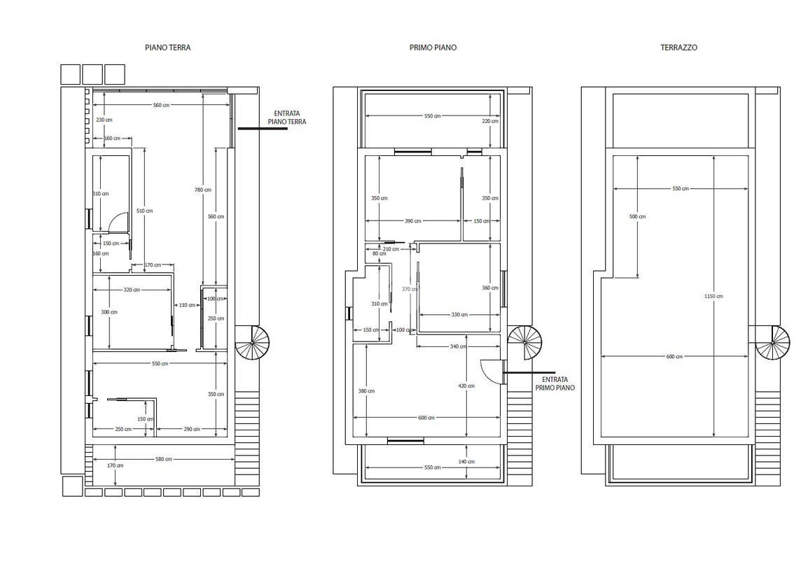
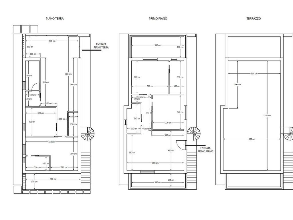
- al PIANO TERRA troviamo cucina-soggiorno che si affacciano sul giardino ad uso esclusivo, due camere e due bagni;

- al PRIMO PIANO troviamo cucina-soggiorno con balcone, due bagni e due camere di cui una con terrazzo. Inoltre, l'appartamento dispone di un ulteriore terrazzo calpestabile di 70 metri quadrati situato al secondo piano e di giardino ad uso esclusivo.

Gli immobili saranno provvisti di cisterna autonoma, di tutti i comfort all'avanguardia con le ultime innovazioni edilizie come prospetto a cappotto , impianti solari termici e fotovoltaici.

E' possibile visionarlo tutti i giorni previo appuntamento telefonico chiamando al nostro numero +39 327 672 5408 oppure inviando un messaggio tramite il servizio WHATSAPP.

Il nostro franchising, su richiesta, mette a disposizione dei propri clienti un consulente che, si occupa della mediazione creditizia ed assicurativa. Contattateci se volete una consulenza gratuita, per sapere quale sia la scelta più adatta alle vostre esigenze.

Seguici sui nostri canali facebook ed instagram.

Mostra tutto

Nelle vicinanze

Trasporto pubblico Trasporto pubblico
Cinisi Terrasini
Cinisi Terrasini
2,9 Km
Ricariche auto elettriche Ricariche auto elettriche
EnelX Terrasini Carlo Alberto Dalla Chiesa
1,7 Km
EnelX Terrasini Vittorio Emanuele
1,7 Km
Scuole Scuole
Scuola Elementare "Don Milani"
2,2 Km
Farmacia Farmacia
Farmacia del Duomo
1,9 Km
Supermercati Supermercati
Decò
1,3 Km
Mio
1,8 Km
Eurospin
1,8 Km
Negozi Negozi
Panificio Maniaci
2,0 Km
Bar Bar
I Leoni
1,8 Km
Enjoy
1,9 Km
Coral Beach Bar
2,8 Km
Ristoranti Ristoranti
Sea club
820 m
iCLUB Lounge Restaurant
1,2 Km
El Bocadito
1,7 Km
Rustico
1,9 Km
Arabesque
1,9 Km
Mostra tutto

Caratteristiche

Rif.:
61192030
Piano:
1 di 2 (Piano basso)
Posti auto:
2
Balconi:
1
Terrazzi:
1
Camere da letto:
2
Mostra tutto
Prezzo Prezzo
€ 225.000
Rata mutuo Rata mutuo
€ 1.061 / mese
Spese annue Spese annue
€ 0
Proponi il tuo prezzoProponi il tuo prezzo

Classe Energetica

A1
A1
A1
A1
A1
A1
A1
A1
A1
Anno di costruzione:
2026
Riscaldamento:
Autonomo
Tipo impianto:
Ad aria
Tipo alimentazione:
Altro

Ti interessa visionare l'immobile?

Fissa un appuntamento  Fissa un appuntamento

Richiedi informazioni

Clicca su Leggi per aprire l'informativa
* Questi campi sono obbligatori

Calcola il tuo mutuo

Semplice e senza impegno
Anticipo

( % )
Mutuo

( % )

pochi semplici passi

inserisci i tuoi dati
Questionario completato
Grazie per aver richiesto un appuntamento senza impegno con un nostro Consulente del Credito e Assicurativo.

Hai inserito correttamente tutti i dati necessari e a breve riceverai una e-mail con un link da convalidare per inviare i tuoi dati.
Affiliato
Terrasini Cinisi Sas
Via Monsignore Evola, 20 90049 Terrasini (PA)

Il nostro staff


  • Liliana Calandrino
    Responsabile

  • Vanessa Lo Iacono
    Coordinatrice

  • Davidemaria Ciacio
    Affiliato
Via Monsignore Evola, 20 90049 Terrasini (PA)
Zona: Terrasini
Mostra su mappa
Affiliato
Terrasini Cinisi Sas
Via Monsignore Evola, 20 90049 Terrasini (PA)

2026 Tecnocasa Franchising S.p.A. - P. IVA 08365160152 - Via Monte Bianco 60/A 20089 Rozzano (MI). Ogni agenzia ha un proprio titolare ed è autonoma. Privacy policy | Policy utilizzo | Cookie policy