Villa a schiera d'angolo in vendita

Terrasini, Contrada Agli Androni - Agliandroni
€ 260.000
4 locali 4 locali
110 Mq 110 Mq
2 bagni 2 bagni

Villa a schiera d'angolo in vendita

Terrasini, Contrada Agli Androni - Agliandroni

Descrizione annuncio

In zona residenziale 'Agli Androni', proponiamo in vendita VILLE DI NUOVA COSTRUZIONE di 110 metri quadrati con ingresso indipendente su un giardino privato e posto auto.

Gli immobili risultano totalmente autonomi grazie alle recinzioni che delimitano i lotti di 220 metri quadrati. Inoltre, la villa gode di doppia esposizione, garantendo luminosità e vista sul giardino.

Le ville verranno consegnate al cliente con la formula 'chiavi in mano' e si trovano attualmente in stato di costruzione. Per questo motivo, oggi vi è la possibilità di apportare alcune modifiche a proprio gusto.

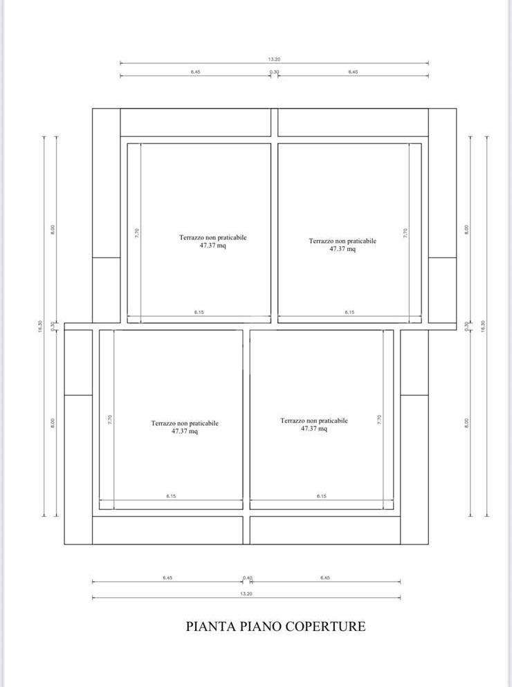
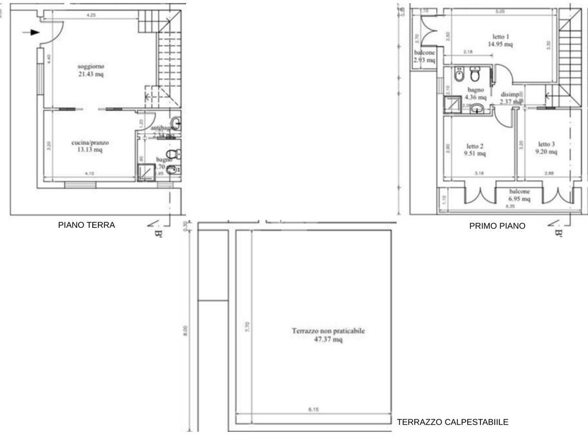
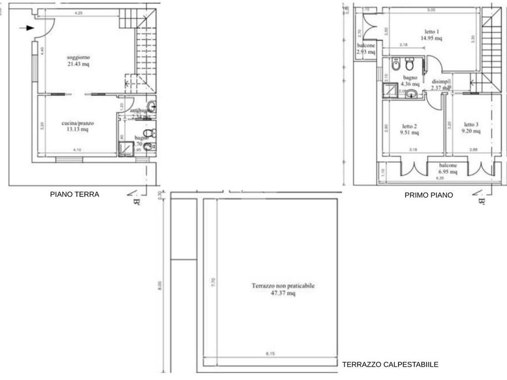
Ogni unità abitativa è così composta:

- piano terra con cucina-soggiorno annessi al giardino, antibagno e bagno;

- primo piano composto da una camera da letto matrimoniale e due camerette, tutte con balcone, oltre a un bagno.

Le ville saranno provviste di cisterna autonoma e di tutti i comfort all'avanguardia con le ultime innovazioni edilizie come impianti solari termici e fotovoltaici.

I render presenti sono puramente indicativi e hanno finalità illustrative; pertanto, finiture e disposizioni potrebbero differire dalla realtà.

E' possibile visionarlo tutti i giorni previo appuntamento telefonico chiamando al nostro numero +39 327 672 5408 oppure inviando un messaggio tramite il servizio WHATSAPP.

Il nostro franchising, su richiesta, mette a disposizione dei propri clienti un consulente che, si occupa della mediazione creditizia ed assicurativa.
Contattateci se volete una consulenza, gratuita, per sapere quale sia la scelta più adatta alle vostre esigenze.

Seguici sui nostri canali facebook ed instagram.

Mostra tutto

Nelle vicinanze

Trasporto pubblico Trasporto pubblico
Cinisi Terrasini
Cinisi Terrasini
2,9 Km
Ricariche auto elettriche Ricariche auto elettriche
EnelX Terrasini Carlo Alberto Dalla Chiesa
1,6 Km
EnelX Terrasini Vittorio Emanuele
1,6 Km
Scuole Scuole
Scuola Elementare "Don Milani"
2,2 Km
Farmacia Farmacia
Farmacia del Duomo
1,9 Km
Supermercati Supermercati
Decò
1,3 Km
Mio
1,7 Km
Eurospin
1,8 Km
Negozi Negozi
Panificio Maniaci
2,0 Km
Bar Bar
I Leoni
1,8 Km
Enjoy
1,9 Km
Coral Beach Bar
2,8 Km
Ristoranti Ristoranti
Sea club
840 m
iCLUB Lounge Restaurant
1,1 Km
El Bocadito
1,7 Km
Rustico
1,9 Km
Arabesque
1,9 Km
Mostra tutto

Caratteristiche

Rif.:
61195493
Piano:
2 di 2 (Piano su più livelli)
Posti auto:
2
Balconi:
2
Terrazzi:
1
Camere da letto:
3
Mostra tutto
Prezzo Prezzo
€ 260.000
Rata mutuo Rata mutuo
€ 1.226 / mese
Spese annue Spese annue
€ 1
Proponi il tuo prezzoProponi il tuo prezzo

Classe Energetica

A1
A1
A1
A1
A1
A1
A1
A1
A1
EP invernale del fabbricato:
EP estiva del fabbricato:
Anno di costruzione:
2026
Riscaldamento:
Autonomo
Tipo impianto:
A radiatori
Tipo alimentazione:
Pannelli

Ti interessa visionare l'immobile?

Fissa un appuntamento  Fissa un appuntamento

Richiedi informazioni

Clicca su Leggi per aprire l'informativa
* Questi campi sono obbligatori

Calcola il tuo mutuo

Semplice e senza impegno
Anticipo

( % )
Mutuo

( % )

pochi semplici passi

inserisci i tuoi dati
Questionario completato
Grazie per aver richiesto un appuntamento senza impegno con un nostro Consulente del Credito e Assicurativo.

Hai inserito correttamente tutti i dati necessari e a breve riceverai una e-mail con un link da convalidare per inviare i tuoi dati.
Affiliato
Terrasini Cinisi Sas
Via Monsignore Evola, 20 90049 Terrasini (PA)

Il nostro staff


  • Liliana Calandrino
    Responsabile

  • Vanessa Lo Iacono
    Coordinatrice

  • Davidemaria Ciacio
    Affiliato
Via Monsignore Evola, 20 90049 Terrasini (PA)
Zona: Terrasini
Mostra su mappa
Affiliato
Terrasini Cinisi Sas
Via Monsignore Evola, 20 90049 Terrasini (PA)

2026 Tecnocasa Franchising S.p.A. - P. IVA 08365160152 - Via Monte Bianco 60/A 20089 Rozzano (MI). Ogni agenzia ha un proprio titolare ed è autonoma. Privacy policy | Policy utilizzo | Cookie policy